domera.imot.bg Обяви За нас Контакти
Продава КЪЩА
град София, Симеоново
к-с Симеоново Ривър Парк
700 000 €
1 369 081.00 лв.

(3 365 €, 6 581.37 лв./m2)
Цената е без ДДС
История на цената
Публикувана в 21:57 на 17 февруари, 2026 год.
Обявата е посетена 200 пъти.
Площ:
208 m2
Двор:
97 m2
Етаж:
3
Строителство:
Тухла, Ще бъде въведен в експлоатация 2026 г.

Описание на имота:


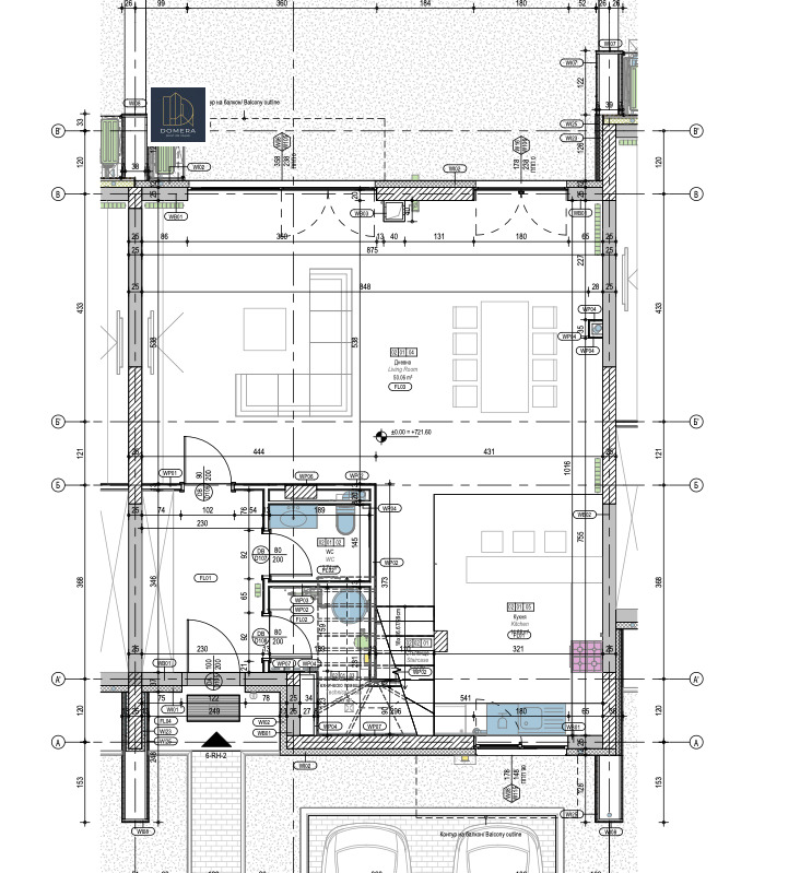
DOMERA представя Луксозна къща на две нива с двор в ж.к. Ривър парк , кв. Симеоново, София

Предлагаме за продажба модерна редова къща на две нива, разположена в затворен комплекс с ниска плътност на застрояване в кв. Симеоново. Имотът съчетава простор, функционалност и спокойствие в среда с изключително богато озеленяване и контролиран достъп.

Основни параметри:
Застроена площ (първо ниво): 100,19 кв.м
Застроена площ (второ ниво): 107,54 кв.м
Обща разгъната застроена площ: 207,73 кв.м
Прилежащ двор (идеални части с разпределено ползване): 89,15 кв.м
Допълнително: подпокривно пространство
Изложение и съседи: двор и съседни къщи в рамките на комплекса

Разпределение:
Първо ниво:
Фоайе, просторна дневна с трапезария и кухненски бокс, тоалетна за гости, техническо помещение и вътрешно стълбище.

Второ ниво:
Три спални, едната с дрешник и собствена баня с тоалетна, втора баня с тоалетна, коридор с обособена мокра зона, вътрешно стълбище и два балкона.
Функционалното разпределение позволява комфортно обитаване от голямо семейство, както и възможност за кабинет или гостна стая.

Предимства на комплекса:
Над 40 000 кв.м споделени зелени площи с над 3000 засадени дървесни вида
Над 67 000 кв.м дворове за индивидуално ползване
Над 7 000 кв.м алеи и зелени пътеки
Детски площадки и зони за игра
Барбекю зони
Паркинг за гости
24/7 жива охрана, контролиран достъп и видеонаблюдение
Имотът се намира на надморска височина над 695 м, което гарантира чист въздух и усещане за близост до планината.

Локация:
Стратегическо разположение в непосредствена близост до Симеоновския лифт, бърз достъп до основни пътни артерии, търговски център с кино, супермаркет, ресторанти и други удобства. Районът съчетава спокойствието на Витоша с удобството на градската инфраструктура.
Имотът е подходящ както за собствено ползване от семейство, търсещо сигурност и зелена среда, така и като дългосрочна инвестиция в премиум сегмента.
Цената е без ДДС

DOMERA
Built on Value
Особености
Тухла
С паркинг
Видео наблюдение
Контрол на достъпа
Охрана
В затворен комплекс
Възможност за дан. кредит
За контакт:
0886817807
Брокер:
Ния Дикова
0886817807
Офис: София
Още оферти от брокера: Продава | Дава под наем | Купува | Наема
Агенция:
ДОМЕРА
0886817807
ДОМЕРА logo
В imot.bg от 2026 г.
domera.imot.bg
Адрес:
област София, гр. София, Simeonovsko Shose 9
ИЗПРАТИ ЗАПИТВАНЕ
ИЗПРАТИ ЗАПИТВАНЕТО

Продава КЪЩА
град София, Симеоново
к-с Симеоново Ривър Парк
Обява: 1j177135822795724

700 000 €
1 369 081.00 лв.
История на цената
(3 365 €, 6 581.37 лв./m2)

Цената е без ДДС
ЗАПАЗИ ОБЯВАТА

Местоположение: град София, Симеоново, к-с Симеоново Ривър Парк

Допълнителни данни за имотите в района и сравнение с други райони

Покажи

Период

и 2 месеца

* Средните цени са определени чрез медианна стойност